During the March 5, 2019 City Council meeting, an update to Moore Square was given and I’ve put the video here for sharing. It’s actually a good watch if you’re interested in what’s going on.
We should plan for a July or August opening based on the presentation given.
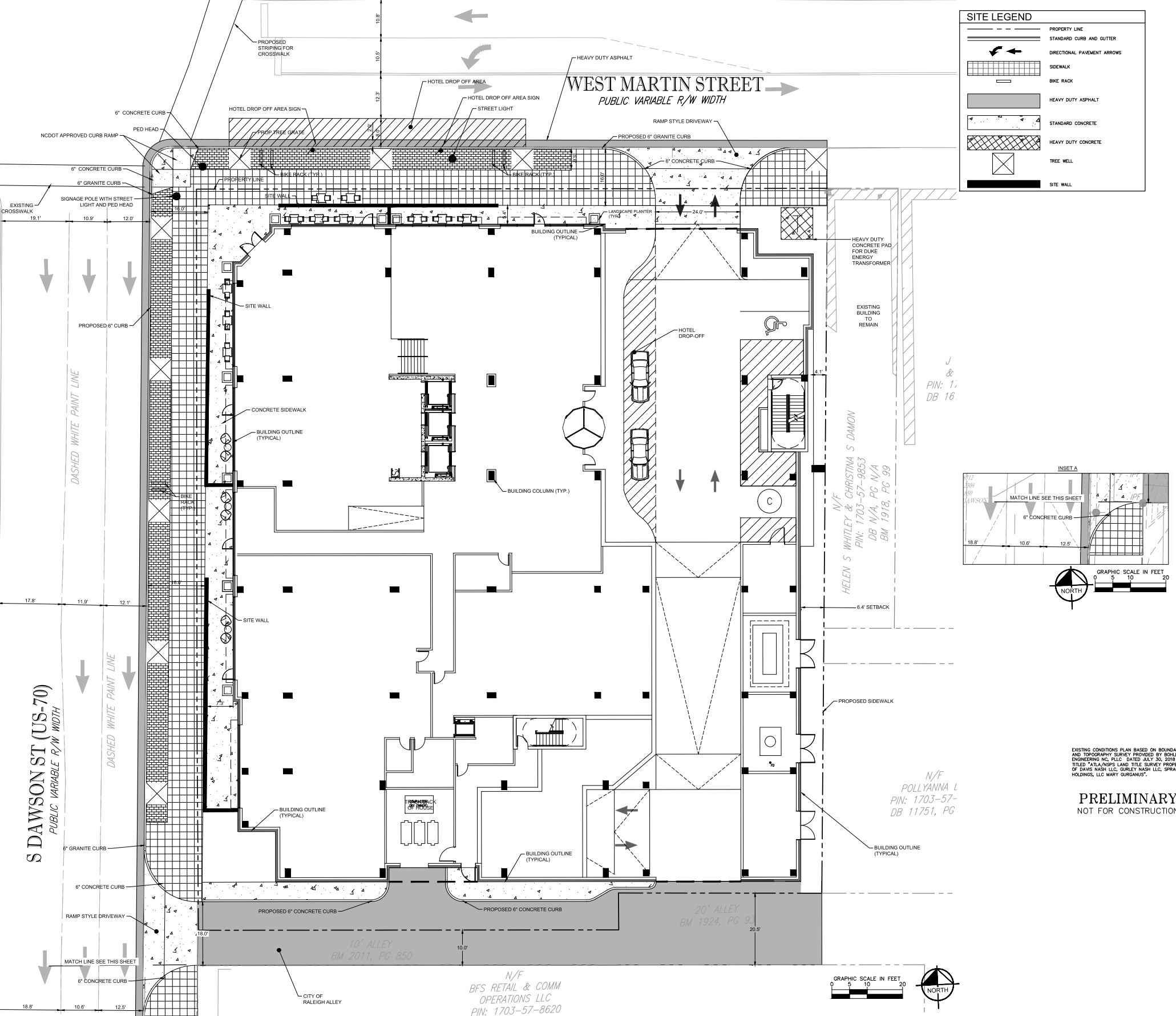
Announced in February with site plans submitted shortly after, Acquisition Group, the developers behind the 3-acre, former N&O property, have released plans that include multiple towers for office, hotel, and residential spaces.
The first phase includes a 15-story, 250-foot office tower called Nexus which will, generally, be replacing the parking deck along Salisbury Street. Plans show a new parking deck below and behind the tower with street-level retail spaces.
Salisbury Street. February 2019.
Future developments after Nexus could be situated along a new internal street for accessing more retail and public spaces. The hotel and residential towers would all have access to these new mixed-use areas.
The future plans are still a work in progress as only the Nexus tower has been submitted. No rezoning is needed and the tower is planned to open in 2021.
With a collection of buildings and new public street, this is a pretty exciting thing to see. The mix of building uses should keep the area lively at different times of the day and week.
Rendering of Nexus Tower
A street that doesn’t really serve as new transportation means the area should be more human-scale. There’s no need to speed through making the area more walkable and bike-friendly. With the right design elements, the developers have an opportunity to make it look special compared to the streets that come straight from the Raleigh Department of Transportation playbook.
Expect to see the area cleared out and demolished sometime this year.
Metal framing, including additional floors, are taking shape over at the Lumsden Bros. Building on West Hargett Street. The developers behind this project have done a great job in preserving the sidewalk character of the building while completely modernizing the interior and adding more density to the area.
Rendering of the office tower at 301 Hillsborough.
301 Hillsborough should hold a special place in the hearts of longtime readers. Exactly 12 years ago, I had a blog post about plans for a 32-story tower at the site but the impending recession basically wrecked it.
The former buildings on this site were demolished in 2007 and when no development plans took place, the site was made into a surface parking lot years later. It’s remained ever since.
Surface parking at 301 Hillsborough in 2019.
Plans have come and gone and this time, the latest owners have submitted plans for a 20-story tower with 300,000 square feet of office space. The rendering, shown above, is of the first phase of the project as the owners own the majority of the block. (minus the southwest corner where The Flying Saucer runs out of)
Later phases could include a hotel and apartments but this first phase is planned to start later this year. With no rezoning needed, the process should move quicker especially with the developer planning to build on spec. (no tenants lined up)
With the DRA’s 2018 State of Downtown Raleigh report saying that the downtown office occupancy rate is at 94.7% that probably means we have a healthy office market and developers can take some risk here.
Great to see progress here on this block. It’s been a long-time coming.
Winter 2019 has been good to the Rogers house at its newest home along East Street. An extension, side project, something from the owners of nearby Guest House Raleigh, Rogers Cottage, as it will be called, may be incorporated into the boutique hotel’s offerings soon.
With lots of eyes looking at the future of Dorothea Dix Park, there is sure to be new development and plans to help connect it to downtown Raleigh. Between the two, one of the largest such projects announced so far is along Saunders Street so I thought it a great time to walk the area.
We’ve talked about a lot of new stuff taking place near the intersection of Saunders and South Streets but going away from downtown, there are buildings and land available for new projects.
A local development firm, Five Horizons, plans for something special in the mostly wooded area along the eastern side of Saunders. Residential towers with skyline and park views plus ground-floor restaurants may one day make up this area. See the map below to get an idea of where the group is making plans.
Planned development is shown in orange. Click for larger.
Roughly nine acres in size, the area is mostly undeveloped with some businesses facing Saunders and the Rocky Branch creek on the northern edge of the property.
From the intersection of Lake Wheeler to where McDowell Street begins, a series of auto-repair shops and light warehouses line the streets. Some are open, some empty.
For this area, the Five Horizons project will create a transformation.
When looking at the currently open rezoning request, the developers are planning for an appropriate zoning that allows buildings between 12 and 20 stories tall with the shortest being in front of the creek.
In addition to a new interior public street, the buildings will be laid out so that every floor has a great view by design. This was mentioned several times from the design team at the CAC meeting I attended.
Starting with the creek, the developers are looking in to ideas to create a public space, such as a boardwalk, here. Bridges from the new development over the creek to the existing greenway could happen as a way to make the downtown skyline view available to all.
Rendering with building massings. Click for larger.
The development could have a mix of residential, office, and retail to create activity throughout the day and night.
The new street will be planned narrower as a way to create more space for people and make it more walkable.
Street and block plan. Click for larger.
After presentations and conversations at the CAC over the last few months, the response has been pretty positive towards this project. This month, the CAC has voted in favor of the rezoning for this project.
Five Horizons say that they are still years away from starting on the first parcel so I imagine this area will certainly take time to be fully built out. I expect that change may also take place nearby so Saunders could become a new downtown district in the near future.
The FNB Tower continues to rise along Fayetteville Street. The Wilmington Street side has a nice dramatic view from the southeast as seen above.
The mixed-use tower will bring over 200 apartments to an area that’s more dominated by 9-to-5ers than anything else so it’s nice to see that mix.
FNB Tower is also the last new development to take place on Fayetteville Street without demolition. I’m hoping this brings eyes to the southern end of Fayetteville where two lonely surface parking lots, zoned for a maximum of 40-story buildings, sit completely under-valued.
Let’s get Fayetteville Street extended one more block!
The Raleigh Architecture Company has set up over on Saunders Street and their renovation is basically wrapped up. It’s looking really good too. See the before pic below.
Saunders Street will be really important in the coming years as more townhomes are built nearby and connections between downtown and Dix Park come together. Enjoy the new digs guys!