
The Omni Hotel, planned for the southern end of Fayetteville Street, is going through the Design Review process. With that, we can peep some early plans to get an idea of what we’re getting at the street-level. There’s plenty here if you’re into proposed architectural plans of a building but I’m going to focus on the street-level elements and spaces. It’s a mixed bag from what I see but it’s probably what we should expect from a single-use tower focused mainly on visitors. Let’s take a look at each side and what the plans tell us at this point in time.
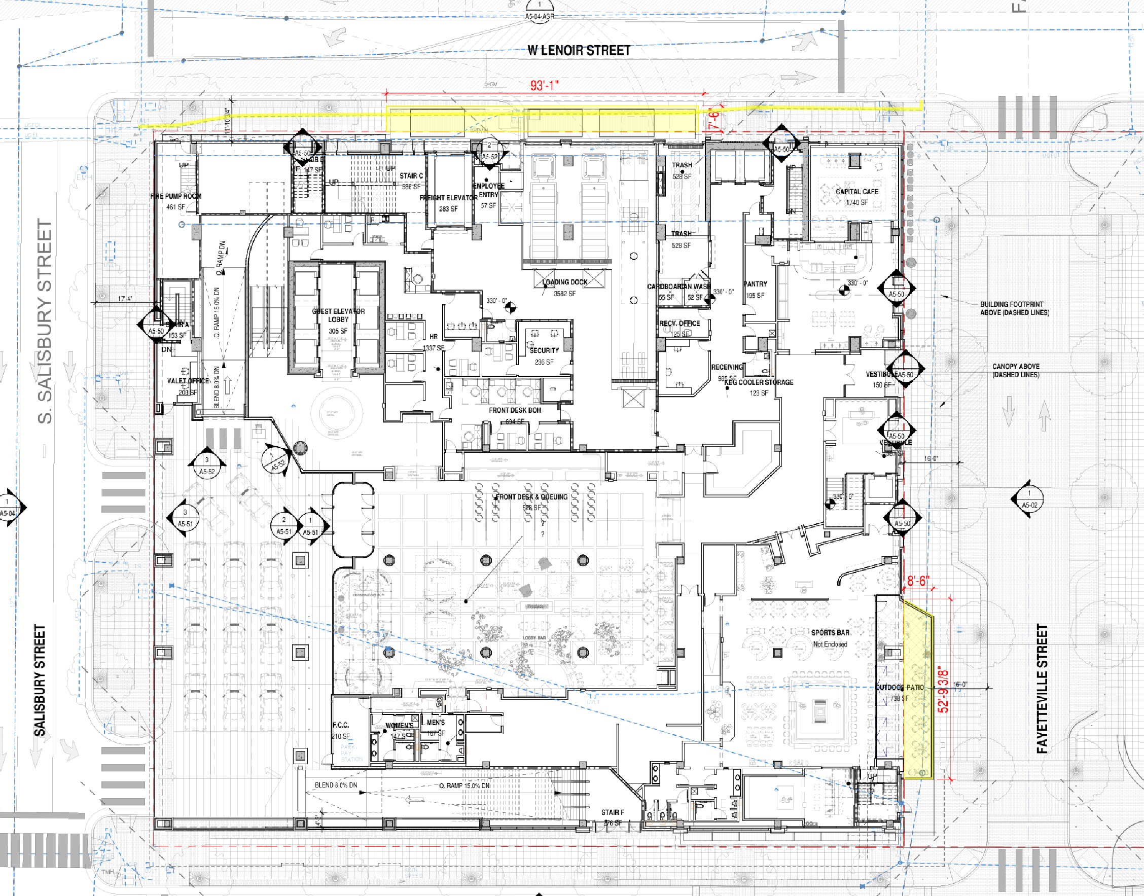
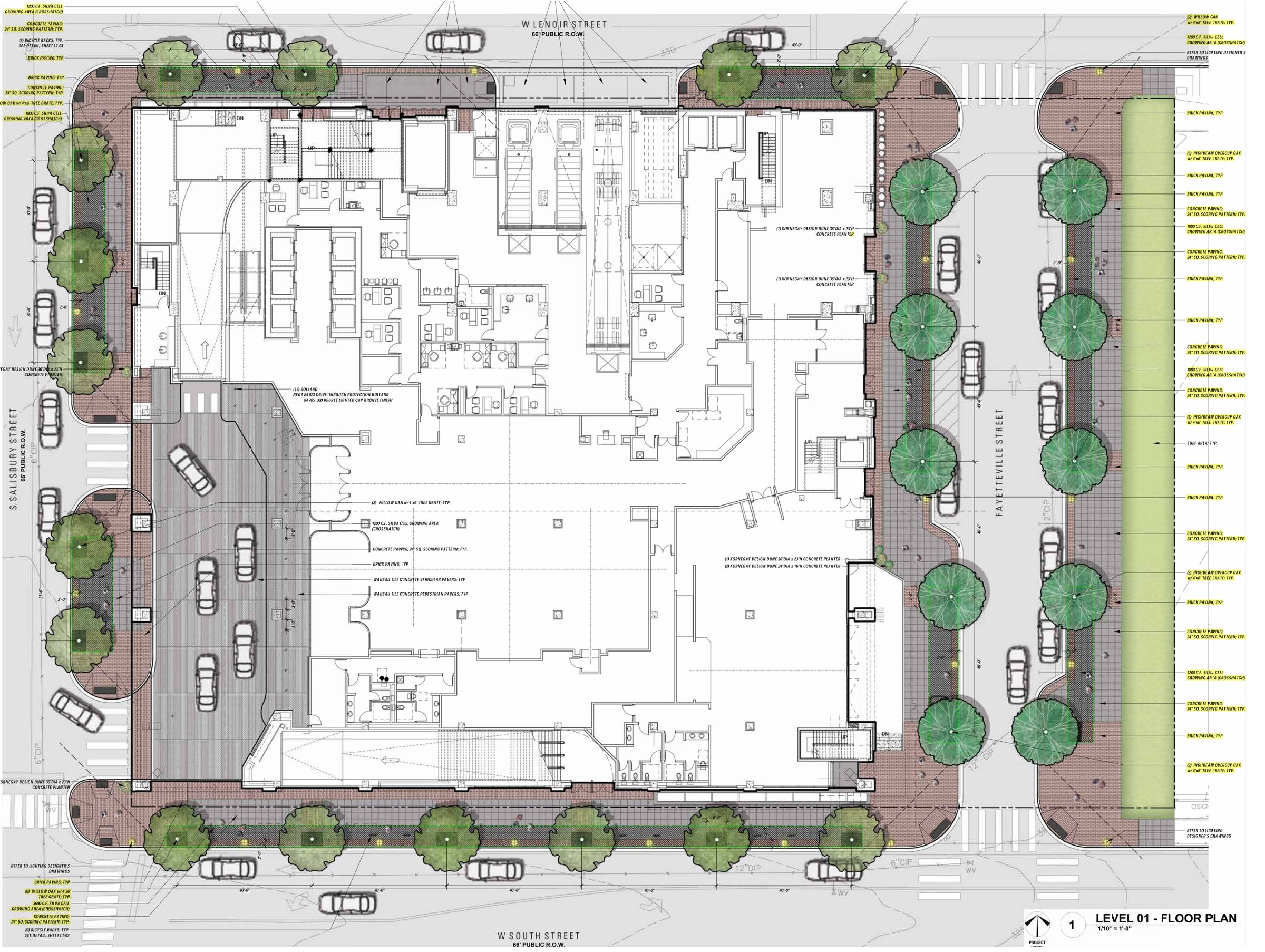
First, let’s start with some plans showing the first floor. We have a sidewalk plan and an interior plan below. What’s very exciting about this is that we also get a sneak peek at the new block of Fayetteville Street. Although I may be overreacting as we already know what it’ll look like. I would guess that the sidewalk style will match that of the existing street but I’m hoping for a change given the “this street is bland looking” vibes from the recent report. All that’s been covered here.


Fayetteville Street

Anything can change between now and when it opens but Fayetteville Street could be getting a sports bar. On the Southeast corner, plans are calling for a sports bar with an outdoor patio. The building also offers some cafe space on the Northeast corner as well with the building entrance in the middle. I was afraid that these larger restaurant spaces would create a blank wall, like what you see at the Marriott’s Fayetteville Street-facing side, but then we have this piece from the design proposal:
At the sports bar, there are large bi-fold glass doors that open up and visually invite more people in from the sidewalk to see what is happening inside. There is also outdoor seating, in front of the café and sports bar, that will draw more people in off the street. All of these features and active use of the space follows the intent of the transparency.
This sounds fantastic and I hope when we host large sporting events, those staying at the hotel can really get into some gameday vibrancy on this block of the street.
It’s also worth mentioning that on the first floor mezzanine (second floor?) there are plans for a second restaurant, that being Bob’s Steak & Chop House. This would be North Carolina’s first location for the restaurant group.
Salisbury Street

Salisbury will have the main vehicle entrance including the porte-cochère. It doesn’t look like there will be much else other than a blank wall and the walkways and driveways for visitors to come and go. I hope there’s some scooter and bike parking here too. I can imagine a visitor getting a ride from the airport, coming into downtown off I-40 onto Saunders, then approaching the Omni from McDowell, seeing the Red Hat Amphitheater, turning right onto Lenoir, admiring our Convention Center on the way (kidding) and then pulling into the Omni. We may need to work on this.
South Street and Lenoir Streets

The north and south sides of the hotel don’t seem that exciting. Facing the performing arts center, the south side of the hotel won’t have any active uses. There are open spaces that allow one to look in and out of the porte-cochère, which isn’t terrible cause it shows some activity rather than a blank wall. Along Lenoir, you get more utility uses like the loading dock and freight elevator. Some of the corner cafe space mentioned along Fayetteville Street will wrap the building onto Lenoir.
I realize these large buildings need utility space but with South Street closed because of the Red Hat Amphitheater and the city’s desire to make Lenoir, possibly, become a connection from Chavis Park to Dix Park, this section of downtown is basically the lifeless backsides of the hotels and convention center.
But I’ll try and end this with a positive note and say that the Omni is certainly doing more than the other nearby hotels in terms of contributing to the street life so good for them. Plus, I’m not even really “diving in” to the fifth floor pool and pool bar today, which I hear locals can use with a day pass. I’m all in for that.
Comments
Comments are disabled here. That's because we're all hanging out on the DTRaleigh Community, an online forum for passionate fans of the Oak City.
