
There’s some site work taking place at 415 South Blount Street, the site of a once announced TownePlace Suites By Marriott hotel. Are they working on the hotel now? I’m not sure. Maybe they are building a fancy parking lot, which would make more money than the currently closed dirt lot, so I wouldn’t be surprised. Of course, I hope the hotel announcement is coming soon and perhaps we can see some updated renderings.
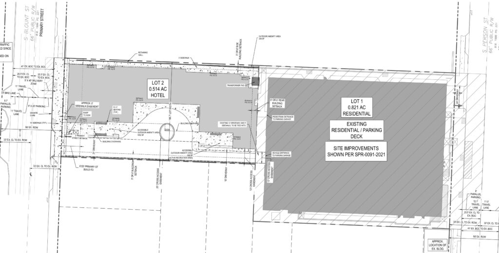
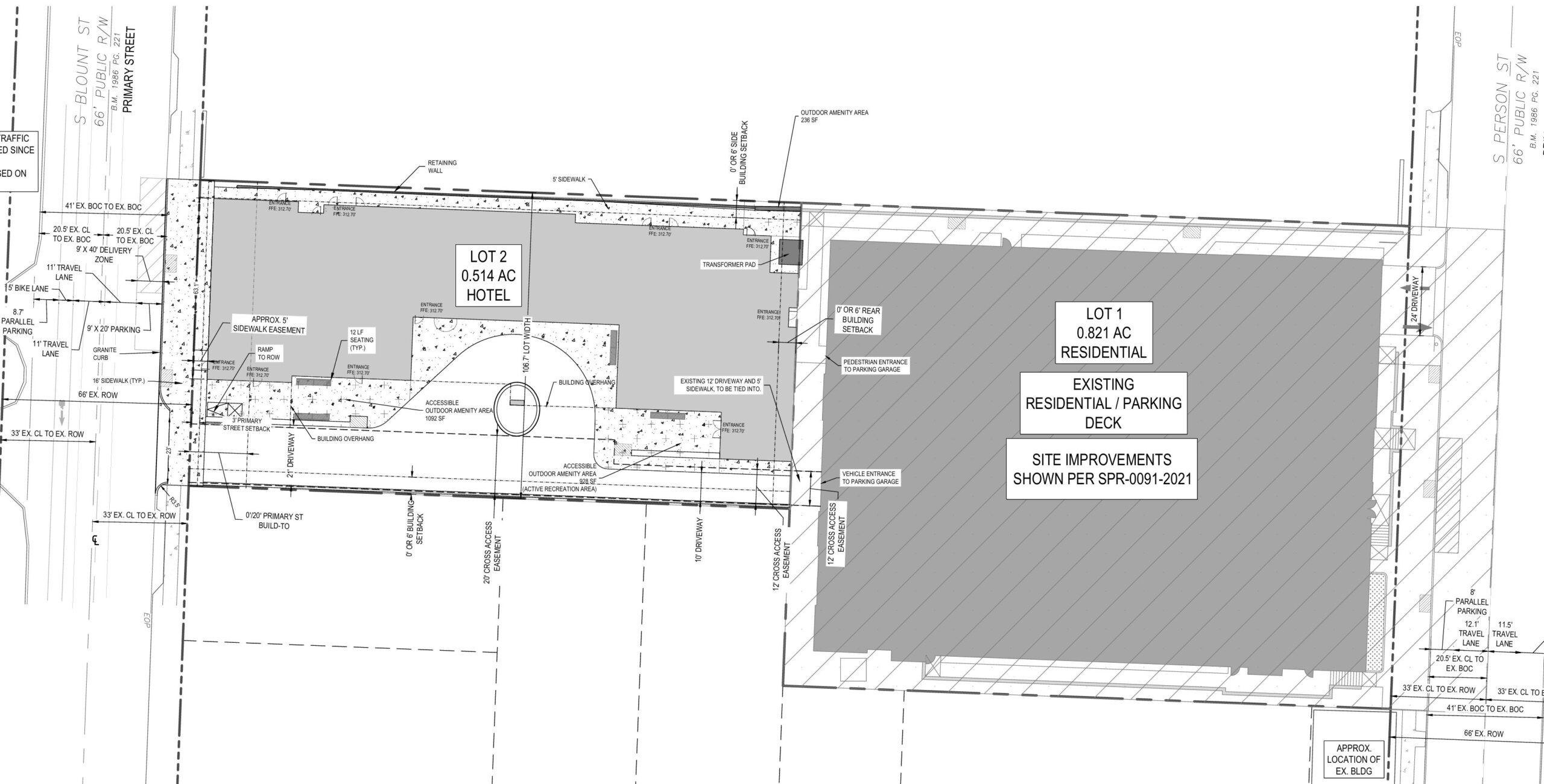
The Acorn Apartments, shown in the photo, that face Person Street was the first phase of the residential/hotel project. The parking deck there was planned to be used for the hotel and a 2022 site plan, shown below, gives us a clue of the layout of the hotel.

When driving to the hotel, visitors will pull in off Blount Street. The southern portion of the lot would be a driveway to the drop off roundabout with parking deck access straight ahead into The Acorn. The hotel would have 138 rooms across seven floors.
Nothing fancy here but I’m all for it so I’m hoping for some kind of confirmation soon on this one.
Comments
Comments are disabled here. That's because we're all hanging out on the DTRaleigh Community, an online forum for passionate fans of the Oak City.
