
Over the last few months, the polish has wrapped up on the new Citrix office site along West Street and today employees are moved in. In case you haven’t seen them, there are some fantastic photos of the new complex up on the company’s Flickr page that you should take a look at.
The opening was big with a lot of media coverage. The mayor, the governor, and other VIPs were all at the official opening. The politicians and the city love this stuff and used it in a well-made video to promote Raleigh and Citrix. I have it embedded below for viewing or you can see it directly on YouTube here.
A company and city on the rise: Citrix moves to downtown Raleigh on YouTube
Now that we’re rolling here let’s take a look at the site.
To a degree, the office portion of the Citrix complex is not mixed-use with the building being purely dedicated to employees. However, if you zoom out that is kind of how the warehouse district is made up these days.
Davie Street contains a mix of restaurants and bars and probably has the most activity but besides the mixed-use nature of The Hue apartments, the single-purpose warehouses and buildings are just that. The future of the district’s urbanity is still uncertain.
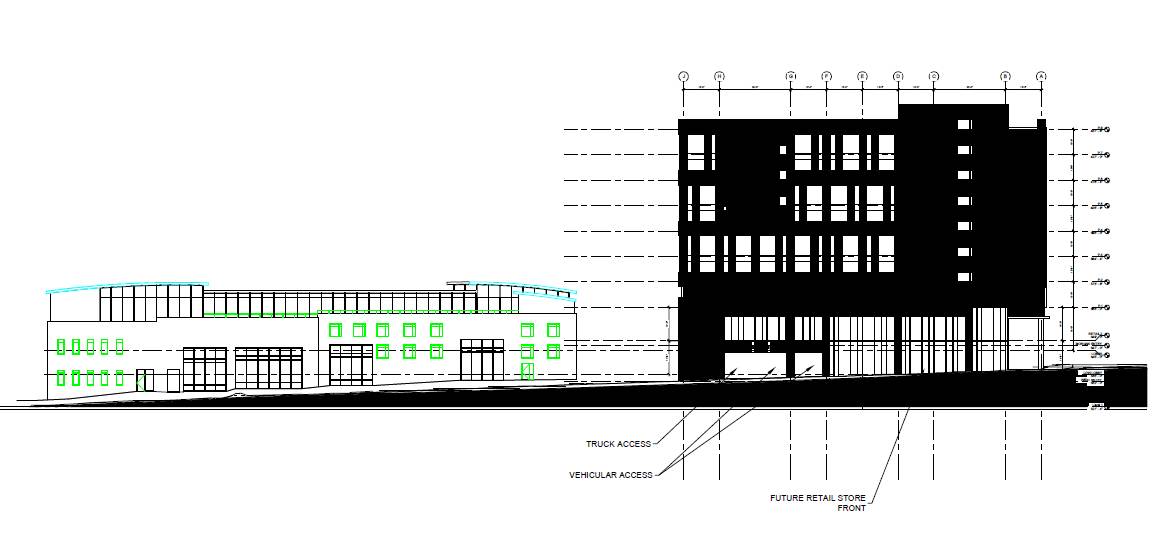
The Citrix parking deck does contain some retail spaces along the length of Morgan Street. Walking by, there is a lot of space here and a huge amount of sidewalk in front. I would imagine that this will open the parking deck for visitors who want to go here and will create a more mixed-use environment.



If you go look, you can see that there is plenty of space for all kinds of uses here. The space even has west facing windows overlooking the railroad tracks.
Weekend days and weekday nights are still pretty calm for the warehouse district so my guess is that these retails spaces may sit empty for awhile. However, if the politicians and media are to be believed and Citrix is the great catalyst that we’ve been waiting for, then I hope that I am wrong.






